Gewerbegrundstück Teilfläche Flst. 1440/2, Reutlingen-Mittelstadt - Baugebiet 'Gewerbefläche Gebiet "Mittelstadt-Ost"'

Grundstücks-Info

Beschreibung

Gewerbegrundstück Teilfläche Flst. 1440/2, Reutlingen-Mittelstadt - Baugebiet 'Gewerbefläche Gebiet "Mittelstadt-Ost"'

Vermarktungsverfahren

Sollten Sie Interesse an diesem gewerblichen Grundstück im Gebiet "Mittelstadt-Ost" haben und Ihr Unternehmen zu den Verkaufskriterien passen, dann bewerben Sie sich bitte ab Freitag, den 21.11.2025 bis spätestens Sonntag, den 14.12.2025, direkt hier. Wir werden anschließend ab Januar 2026 mit allen zu den Suchkriterien passenden Unternehmen persönliche Einzelgespräche führen, um die Vergabe des Gewerbegrundstücks vorzubereiten. Wegen einem Terminvorschlag kommen wir auf Sie zu. Die letztliche Entscheidung über die Vergabe der Gewebefläche trifft das zuständige gemeinderätliche Gremium auf Grundlage des fachlichen Vorschlags der Verwaltung.

Sollten Sie Fragen zum Vergabeverfahren haben, dann können Sie sich gerne per E-Mail unter gewerbeflaechen@reutlingen.de an uns wenden. Wir nehmen dann anschließend Kontakt zu Ihnen auf.


Tandembewerbungen

Bei der größeren Fläche können sich auch mehrere interessierte Unternehmen über eine Tandembewerbung auf die Flächenausschreibung bewerben. Sollten Sie Interesse an einer Tandembewerbung haben, dann würden wir Sie bitten, für alle jeweiligen Interessenten eine separate Bewerbung abzugeben mit dem jeweiligen Hinweis, dass mit anderen Interessenten die Fläche genutzt und erworben werden würde.

Bei der kleineren Fläche des Stammgrundstücks ist eine weitere Unterteilung des Grundstücks schwierig möglich.


Grundstück / Erschließung

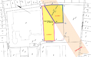
Bei dem hier ausgeschriebenen Grundstück handelt es sich um zwei Teilflächen des Stammgrundstücks Flst. 1440/2, Gemarkung Mittelstadt, mit einerseits ca. 10.500 m² und andererseits ca. 3.000 m². Die Teilflächen sind in den dargestellten Lageplänen ersichtlich.

Der Preis für das Grundstück richtet sich nach den folgenden Parametern:

  • Für die uneingeschränkt bebaubare Fläche werden 170,00 €/m² angesetzt
  • Für die, durch die Hochspannungsleitung, einschränkt bebaubare Fläche werden 100,00 €/m² angesetzt
    (Der durch die Hochspannungsleitung eingeschränkt bebaubare Bereich ist im angehängten Bebauungsplan durch den Schutzstreifen ersichtlich)
  • Daraus resultiert der jeweils angezeigte Kaufpreis

Derzeit wird eine an der westlichen Grundstücksgrenze in südliche Richtung verlaufende Erschließungsstraße samt zugehörigen Ver- und Entsorgungsleitungen geplant und anschließend gebaut. Am Ende dieser Erschließungsstraße wird ein Wendehammer entstehen. Die Zufahrt und die Versorgung des Grundstücks wird somit über eine noch herzustellende Straße gewährleistet. Die Bauarbeiten sollen in Q1 / 2026 durchgeführt und abgeschlossen werden.

Planungsrecht / Bebauungsplan

Beachten Sie bitte zusätzlich die Bestimmungen des Bebauungsplans in Bezug auf Ihr konkretes Bauvorhaben. Der geltende Bebauungsplan (Textteil, Begründung, Planteil mit Legende) sowie weitere Informationen sind im Flächenprofil hinterlegt.

Nähere Informationen zur Lage und zum Grundstück, sowie zum geltenden Bebauungsplan, können über den digitalen Stadtplan eingesehen werden unter: Stadtplan Reutlingen. Hier kann im Suchfeld die Flurstücksnummer 1440/2, Gemarkung Mittelstadt, eingegeben werden.

Lage

Das Grundstück liegt am östlichen Rand der Reutlinger Bezirksgemeinde Mittelstadt, im bestehenden Gewerbegebiet "Mittelstadt-Ost".

Die Anbindung des Gewerbegebiets an das überörtliche Straßennetz erfolgt über die Straße "Schießwieslenstraße" hin zur Landstraße 374. Eine nahe Anbindung an die Bundesstraße 312 Richtung Reutlingen/Tübingen oder Stuttgart ist gegeben. Die nächste Bushaltestelle „Metzinger Straße“ der Linien 6 und 61 sind in fußläufiger Entfernung erreichbar. Dort verkehren auch überörtliche Buslinien in benachbarte Gemeinden.


Fakten

Nutzung Gewerbegebiet
Angebotsart Verkauf
Fläche 1,0 ha
Quadratmeterpreis nicht bekannt
Kaufpreis 1.458.660,00 €
Kaufpreis zzgl. Hausanschlusskosten, zzgl. Vermessungskosten,
Flurstücknummer 1440/2
Straße / Hausnummer Otto-Knecht-Straße
Bebauungsplan rechtskräftig seit 24.09.1993
Erschließungsdatum nicht bekannt
Bauzwang Bauverpflichtung ab Kaufvertragsbeurkundung bzw. Ende der Erschließungsmaßnahmen: 30 % der maximal bebaubaren Fläche innerhalb 3 Jahren; 60 % der maximal bebaubaren Fläche innerhalb 6 Jahren
Haustypen Bürogebäude, Lager- und Werkhalle
Dachformen Pultdach, versetztes Pultdach, Flachdach
Dachneigung
GFZ
GRZ 0,7
Vollgeschosse
Einheimischenklausel
Anbieter Stadt Reutlingen

Baugrund

Bisher landwirtschaftlich genutztes Grundstück.


Altlasten

Für das Grundstück im Gebiet "Mittelstadt-Ost" liegen keine öffentlich-rechtlichen Altlasten vor.


Einschränkungen

  • Derzeit erfolgt noch eine an der westlichen Grundstücksgrenze des Stammgrundstücks verlaufende Erschließungsplanung einer Straße und zugehörigen Ver- und Entsorgungsleitungen mit anschließender Bauausführung. Am Ende dieser Erschließungsstraße wird zusätzlich ein Wendehammer entstehen, welcher jedoch maximal für Müllfahrzeuge ausgelegt sein wird. Aktuell sieht die Planung vor, dass die Erschließungsmaßnahmen in Q1 2026 abgeschlossen sind.
  • Es wird lediglich eine Teilfläche des Stammgrundstücks Flst. 1440/2, Gemarkung Mittelstadt, veräußert. Ein Teil der Grundstücksvermessung erfolgt im Rahmen der aktuellen Erschließungsplanung und der Durchführung der Erschließungsarbeiten.
    • Im östlichen Bereich des Grundstücks befindet sich ein Entwässerungsgraben. Dieser ist nicht Teil der Vermarktung. Ab der Böschungsoberkante wird ein 2 m breiter Streifen bis zur neuen Grundstücksgrenze vermessen.
  • Über das Grundstück verläuft eine Hochspannungsleitung der TransnetBW mit eingetragener Dienstbarkeit zugunsten der Leitungstrasse. Bauvorhaben sind eng mit dem Leitungsträger abzustimmen, eine Bebauung kann aber unter Einhaltung der Vorgaben innerhalb des Schutzstreifens genehmigt werden.
    • Generell müssen Aufbauten u.Ä. immer mindestens 5 m Abstand zu den Leiterseilen haben.
    • Im niedrigsten Bereich der Hochspannungsleitung sind voraussichtlich Gebäudehöhen bis max. 4,5 m zulässig.
  • Der Erwerber verpflichtet sich, sein Bauvorhaben entsprechend den Festsetzungen des geltenden Bebauungsplans zu erstellen. Der textliche Teil des geltenden Bebauungsplans nebst Lageplan finden Sie in der Anlage.
  • Bei städtischen Gewerbeflächenveräußerungen werden standardmäßig folgende Bedingungen aufgenommen:
    • Bauverpflichtung innerhalb von drei Jahren ab Beurkundung bzw. Fertigstellung der Erschließungsmaßnahmen (bezugsfertig)
    • Wiederkaufsrecht bzgl. Fristeinhaltung der Bauverpflichtung und unbebauter Weiterveräußerung
    • Nachzahlungsverpflichtung für den Einbau von Wohnraum

Infrastruktur

Energieversorgung
Gas
Nah- oder Fernwärme
Wasserversorgung

Kommunikation

DSL
Glasfaseranschluss
Kabelanschluss
VDSL

Umgebung

Alten- und Pflegeheime
Ärzte
Einkaufsmöglichkeiten
Kindergarten
Kinderkrippe
Kitas
Krankenhäuser / Kliniken
Mobiler Pflegedienst
Öffentlicher Personennahverkehr
Schulen
Schwimmbäder / Badeseen
Sozialstationen
Spielplätze
Sporteinrichtungen


Alle Grundstücke im Baugebiet 'Gewerbefläche Gebiet "Mittelstadt-Ost"'
Stadtplan von Reutlingen

Gewerbefläche Gebiet "Mittelstadt-Ost"

Baugebiet und Umgebung

Das Gewerbegebiet "Mittelstadt-Ost" befindet sich im Osten der Reutlinger Bezirksgemeinde Mittelstadt und wurde sukzessive über Jahrzehnte aufgesiedelt. Am Ende der Schießwieslenstraße/Otto-Knecht-Straße ist eine Teilfläche des Gewerbegrundstücks Flst. 1440/2, Gemarkung Mittelstadt, bisher keiner Entwicklung zugeführt worden. Hier soll nun ein Verkauf stattfinden und dann eine gewerbliche Nutzung erfolgen.

Vermarktungsverfahren

Sollten Sie Interesse an diesem gewerblichen Grundstück im Gebiet "Mittelstadt-Ost" haben und Ihr Unternehmen zu den Verkaufskriterien passen, dann bewerben Sie sich bitte ab Freitag, den 21.11.2025 bis spätestens Sonntag, den 14.12.2025, direkt hier. Wir werden anschließend ab Januar 2026 mit allen zu den Suchkriterien passenden Unternehmen persönliche Einzelgespräche führen, um die Vergabe des Gewerbegrundstücks vorzubereiten. Wegen einem Terminvorschlag kommen wir auf Sie zu. Die letztliche Entscheidung über die Vergabe der Gewebefläche trifft das zuständige gemeinderätliche Gremium auf Grundlage des fachlichen Vorschlags der Verwaltung.

Sollten Sie Fragen zum Vergabeverfahren haben, dann können Sie sich gerne per E-Mail unter gewerbeflaechen@reutlingen.de an uns wenden. Wir nehmen dann anschließend Kontakt zu Ihnen auf.


Tandembewerbungen

Bei der größeren Fläche können sich auch mehrere interessierte Unternehmen über eine Tandembewerbung auf die Flächenausschreibung bewerben. Sollten Sie Interesse an einer Tandembewerbung haben, dann würden wir Sie bitten, für alle jeweiligen Interessenten eine separate Bewerbung abzugeben mit dem jeweiligen Hinweis, dass mit anderen Interessenten die Fläche genutzt und erworben werden würde.

Bei der kleineren Fläche des Stammgrundstücks ist eine weitere Unterteilung des Grundstücks schwierig möglich.


Grundstück / Erschließung

Bei dem hier ausgeschriebenen Grundstück handelt es sich um zwei Teilflächen des Stammgrundstücks Flst. 1440/2, Gemarkung Mittelstadt, mit einerseits ca. 10.500 m² und andererseits ca. 3.000 m². Die Teilflächen sind in den dargestellten Lageplänen ersichtlich.

Der Preis für das Grundstück richtet sich nach den folgenden Parametern:

  • Für die uneingeschränkt bebaubare Fläche werden 170,00 €/m² angesetzt
  • Für die, durch die Hochspannungsleitung, einschränkt bebaubare Fläche werden 100,00 €/m² angesetzt
    (Der durch die Hochspannungsleitung eingeschränkt bebaubare Bereich ist im angehängten Bebauungsplan durch den Schutzstreifen ersichtlich)
  • Daraus resultiert der jeweils angezeigte Kaufpreis

Derzeit wird eine an der westlichen Grundstücksgrenze in südliche Richtung verlaufende Erschließungsstraße samt zugehörigen Ver- und Entsorgungsleitungen geplant und anschließend gebaut. Am Ende dieser Erschließungsstraße wird ein Wendehammer entstehen. Die Zufahrt und die Versorgung des Grundstücks wird somit über eine noch herzustellende Straße gewährleistet. Die Bauarbeiten sollen in Q1 / 2026 durchgeführt und abgeschlossen werden.

Planungsrecht / Bebauungsplan

Beachten Sie bitte zusätzlich die Bestimmungen des Bebauungsplans in Bezug auf Ihr konkretes Bauvorhaben. Der geltende Bebauungsplan (Textteil, Begründung, Planteil mit Legende) sowie weitere Informationen sind im Flächenprofil hinterlegt.

Nähere Informationen zur Lage und zum Grundstück, sowie zum geltenden Bebauungsplan, können über den digitalen Stadtplan eingesehen werden unter: Stadtplan Reutlingen. Hier kann im Suchfeld die Flurstücksnummer 1440/2, Gemarkung Mittelstadt, eingegeben werden.


Zum Baugebiet
Objekt-Nr.: GR13383
Grundstücksgröße: 1,0 ha
Kaufpreis: 1.458.660,00 €
Kaufpreis inkl. Erschließungskosten, inkl. Entwässerungskosten, zzgl. Hausanschlusskosten, zzgl. Vermessungskosten, inkl. Kostenerstattungsbetrag


Für dieses Baugebiet können Sie sich während der Bewerbungsphase auf bis zu 2 Grundstücke bewerben.



Exposé downloaden
auf Merkliste setzen


Ansprechpartner

Hr. Fabian Schäufele / Hr. Stefan Peterhansl
Stadt Reutlingen

Telefon: 07121 303 - 2543 / -420407121 303 - 2543 / -4204
E-Mail: stefan.peterhansl@reutlingen.de



Ansprechpartner für baurechtl. Fragen

Bürgerbüro Bauen
Bereich: Bau- und Planungsberatung

Telefon: 07121/303-560007121/303-5600
Telefax: 07121/303-5505
E-Mail: buergerbuerobauen@reutlingen.de



Anbieterinformationen

Verantwortlich für Inhalte und Angebote dieser Seite: Stadt Reutlingen

Impressum des Anbieters Datenschutzrichtlinie des Anbieters