
| Grundstück: | Gewerbegrundstück Teilfläche Flst. 1440/2, Reutlingen-Mittelstadt |
| Status: | reserviert |
| Größe: | 10486 m2 |
| Preis: | 1.458.660,00 € |
| Nutzungsart: | Gewerbegebiet |

| Grundstück: | Gewerbegrundstück Teilfläche Flst. 1440/2, Reutlingen-Mittelstadt |
| Status: | reserviert |
| Größe: | 2989 m2 |
| Preis: | 431.620,00 € |
| Nutzungsart: | Gewerbegebiet |
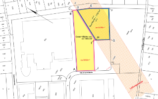
Das Gewerbegebiet "Mittelstadt-Ost" befindet sich im Osten der Reutlinger Bezirksgemeinde Mittelstadt und wurde sukzessive über Jahrzehnte aufgesiedelt. Am Ende der Schießwieslenstraße/Otto-Knecht-Straße ist eine Teilfläche des Gewerbegrundstücks Flst. 1440/2, Gemarkung Mittelstadt, bisher keiner Entwicklung zugeführt worden. Hier soll nun ein Verkauf stattfinden und dann eine gewerbliche Nutzung erfolgen.
Vermarktungsverfahren
Sollten Sie Interesse an diesem gewerblichen Grundstück im Gebiet "Mittelstadt-Ost" haben und Ihr Unternehmen zu den Verkaufskriterien passen, dann bewerben Sie sich bitte ab Freitag, den 21.11.2025 bis spätestens Sonntag, den 14.12.2025, direkt hier. Wir werden anschließend ab Januar 2026 mit allen zu den Suchkriterien passenden Unternehmen persönliche Einzelgespräche führen, um die Vergabe des Gewerbegrundstücks vorzubereiten. Wegen einem Terminvorschlag kommen wir auf Sie zu. Die letztliche Entscheidung über die Vergabe der Gewebefläche trifft das zuständige gemeinderätliche Gremium auf Grundlage des fachlichen Vorschlags der Verwaltung.
Sollten Sie Fragen zum Vergabeverfahren haben, dann können Sie sich gerne per E-Mail unter gewerbeflaechen@reutlingen.de an uns wenden. Wir nehmen dann anschließend Kontakt zu Ihnen auf.
Tandembewerbungen
Bei der größeren Fläche können sich auch mehrere interessierte Unternehmen über eine Tandembewerbung auf die Flächenausschreibung bewerben. Sollten Sie Interesse an einer Tandembewerbung haben, dann würden wir Sie bitten, für alle jeweiligen Interessenten eine separate Bewerbung abzugeben mit dem jeweiligen Hinweis, dass mit anderen Interessenten die Fläche genutzt und erworben werden würde.
Bei der kleineren Fläche des Stammgrundstücks ist eine weitere Unterteilung des Grundstücks schwierig möglich.
Grundstück / Erschließung
Bei dem hier ausgeschriebenen Grundstück handelt es sich um zwei Teilflächen des Stammgrundstücks Flst. 1440/2, Gemarkung Mittelstadt, mit einerseits ca. 10.500 m² und andererseits ca. 3.000 m². Die Teilflächen sind in den dargestellten Lageplänen ersichtlich.
Der Preis für das Grundstück richtet sich nach den folgenden Parametern:
Derzeit wird eine an der westlichen Grundstücksgrenze in südliche Richtung verlaufende Erschließungsstraße samt zugehörigen Ver- und Entsorgungsleitungen geplant und anschließend gebaut. Am Ende dieser Erschließungsstraße wird ein Wendehammer entstehen. Die Zufahrt und die Versorgung des Grundstücks wird somit über eine noch herzustellende Straße gewährleistet. Die Bauarbeiten sollen in Q1 / 2026 durchgeführt und abgeschlossen werden.
Planungsrecht / Bebauungsplan
Beachten Sie bitte zusätzlich die Bestimmungen des Bebauungsplans in Bezug auf Ihr konkretes Bauvorhaben. Der geltende Bebauungsplan (Textteil, Begründung, Planteil mit Legende) sowie weitere Informationen sind im Flächenprofil hinterlegt.
Nähere Informationen zur Lage und zum Grundstück, sowie zum geltenden Bebauungsplan, können über den digitalen Stadtplan eingesehen werden unter: Stadtplan Reutlingen. Hier kann im Suchfeld die Flurstücksnummer 1440/2, Gemarkung Mittelstadt, eingegeben werden.
Lage
Das Grundstück liegt am östlichen Rand der Reutlinger Bezirksgemeinde Mittelstadt, im bestehenden Gewerbegebiet "Mittelstadt-Ost".
Die Anbindung des Gewerbegebiets an das überörtliche Straßennetz erfolgt über die Straße "Schießwieslenstraße" hin zur Landstraße 374. Eine nahe Anbindung an die Bundesstraße 312 Richtung Reutlingen/Tübingen oder Stuttgart ist gegeben. Die nächste Bushaltestelle „Metzinger Straße“ der Linien 6 und 61 sind in fußläufiger Entfernung erreichbar. Dort verkehren auch überörtliche Buslinien in benachbarte Gemeinden.
Baugrund
Bisher landwirtschaftlich genutztes Grundstück.
Altlasten
Für das Grundstück im Gebiet "Mittelstadt-Ost" liegen keine öffentlich-rechtlichen Altlasten vor.
Einschränkungen
Nicht gefunden was Sie suchen?
Zurück zum Stadtportal von ReutlingenFolgende Grundstücke werden in diesem Baugebiet vermarktet.
Gewerbegrundstück Teilfläche Flst. 1440/2, Reutlingen-MittelstadtGewerbefläche Gebiet "Mittelstadt-Ost" in Mittelstadt, Reutlingen-Mittelstadt Größe: 1,0 ha |
1,0 ha |
Kaufpreis 1.458.660,00 € Verkauf |
|
Gewerbegrundstück Teilfläche Flst. 1440/2, Reutlingen-MittelstadtGewerbefläche Gebiet "Mittelstadt-Ost" in Mittelstadt, Reutlingen-Mittelstadt Größe: 2989 qm |
2989 qm |
Kaufpreis 431.620,00 € Verkauf |
Verantwortlich für Inhalte und Angebote dieser Seite: Stadt Reutlingen
Dokumente |
|---|
| Pläne |
| Richtlinien und Vorschriften |
Fakten |
|
|---|---|
| Stadt / Gemeinde: | Reutlingen |
| Nutzungsart: | Gewerbegebiet |
| Angebotstyp: | Verkauf |
| Grundstücksgrößen: | |
| Grundstücke in Baugebiet: | 2 |
| Freie Grundstücke: | 0 |
| Bebauungsplan rechtskräftig seit: | 24.09.1993 |
| Baugebiets-Id: | BG2553 |
| Bauzwang: | |
| Erschließungsdatum: | nicht bekannt |
| Einheimischenklausel: | |
Infrastruktur |
|
|---|---|
| Nah- oder Fernwärme | |
| Energieversorgung | |
| Wasserversorgung | |
| Gas | |
Kommunikation |
|
| Glasfaseranschluss | |
| DSL | |
| VDSL | |
| Kabelanschluss | |
Umgebung |
|
| Mobiler Pflegedienst | |
| Ärzte | |
| Schwimmbäder / Badeseen | |
| Sozialstationen | |
| Sporteinrichtungen | |
| Öffentlicher Personennahverkehr | |
| Alten- und Pflegeheime | |
| Einkaufsmöglichkeiten | |
| Kinderkrippe | |
| Spielplätze | |
| Kitas | |
| Schulen | |
| Krankenhäuser / Kliniken | |
| Kindergarten |