Info zu Stadt & Region von Marktheidenfeld
Interessentenliste Wohnbau
Tragen Sie sich jetzt in die Interessentenliste "Interessentenliste WOHNBAU für Stadt Marktheidenfeld" ein, um über neue Wohnbau-Grundstücke informiert zu werden.
Interessentenliste Gewerbeflächen
Tragen Sie Ihr Unternehmen jetzt in die Interessentenliste "Interessentenliste GEWERBE für Stadt Marktheidenfeld" ein, um über aktuelle Entwicklungen zu Gewerbeflächen informiert zu bleiben.
Über Marktheidenfeld
Rund 11.500 Einwohner leben in Marktheidenfeld, und fast ebenso viele Menschen arbeiten hier. Die ausgezeichnete Infrastruktur, Gewerbebetriebe in großer Branchenvielfalt, der hohe Wohnwert, die guten Einkaufs- und Freizeitmöglichkeiten sowie die kulturellen Angebote bieten eine hohe Lebensqualität.
Das Mittelzentrum Marktheidenfeld, am Main gelegen und eingebettet zwischen dem Fränkischen Weinland und dem Spessart, liegt in der Regiopolregion Mainfranken. Marktheidenfeld liegt am Main und lebt am Main. Zahlreiche Unternehmen, darunter eingige Branchenführer und Hidden Champions, haben ihren Sitz in Marktheidenfeld. WAREMA, P&G, Schneider Electric, Schleunungdruck/Flyeralarm, Fertig Motors, Hilte oder Cummins sind nur einige klingende Namen der großen Bandbreite von Untenehmen, die hier ansässig sind. Ein großes Rad- und Wanderwegenetz, familiengeführte Hotels, zahlreiche Gaststätten und Cafés sorgen für Genuss. Gut ausgestattete Kindertagesstätten mit sehr vielen Betreuungsmöglichkeiten, nahezu alle Schularten in der Stadt, ein Erlebnisbad, eine aktive Volkshochschule, das Kulturzentrum Frack-Haus und eine neu gebaute Stadtbibliothek sorgen seit Jahrzehnten für eine stetige positive Weiterentwicklung.
Im Umkreis von Marktheidenfeld bestehen vielfältige Einrichtungen der Forschung und Lehre: die Universität Würzburg und die Fachhochschulen Würzburg-Schweinfurt und Aschaffenburg.
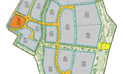
Haben Sie Interesse an einem Bauplatz in Marktheidenfeld oder den Stadtteilen? Dann tragen Sie sich in die Interessentenliste ein. Dieser Eintrag ist auch bereits möglich, sofern noch kein neues Baugebiet beschlossen wurde. Aktuell ist in Altfeld das Baugebiet "Märzfeld" in der konkreten Planung (das Verfahren zur Aufstellung eines Bebauungsplanes läuft).
Region
Marktheidenfeld ist einerseits geprägt vom Main, an dessen Ufern sich schon vor über 1000 Jahren eine erste Siedlung befand, und andererseits vom Wal des Spessarts, an dessen Ostrand sich die Stadt befindet.Eingebettet in eine wirtschafsstarke Region in Main-Spessart, ist die zentrale Lage in Deutschland zwischen Rhein-Main und Nürnberg und die kurzen Wege ein großer Faktor für die Lebensqualität. Die näcshten Städte sind 80km im Westen Frankfurt, 35 im Osten Würzburg, 120 km südöstlich Nürnberg.
Infrastruktur
Marktheidenfeld zeichnet sich durch eine hervorragede Verkehrsanbidung aus. Die Stadt befindet sich an der an der Autobahn A3 Frankfurt-Nürnberg und verfügt über eine Anschlussstelle. Würzburg ist in 30 min Fahrzeit mit dem Auto zu erreichen, Frankfurt über die Autobahn in weniger als einer Stunde. Durch die Stadt führt die B8. Der Stadtbus verbindet die Wohngebiete im Stundentakt mit dem Zentrum, in dem sich auch der ZOB befindet. Die nächste ICE-Haltestelle ist im 35km entfernten Würzburg, der Flughafen Frankfurt am Main ist 80km entfernt
Vereine
www.stadt-marktheidenfeld.de/b...
Restaurants
Marktheidenfeld, da geht`s Dir gut! Sei es eine deftige Brotzeit, etwas Vegetarisches oder ein exklusives Vier-Gänge-Menu: Die Vielfalt macht`s. Hier gibt es ausgezeichnete Gastronomie, gemütliche Cafes, Bistros, Kellerkneipe oder Burgerladen: Für jeden Geschmack bietet Marktheidenfeld das Passende. Dazu ein frisch gezapftes Bier aus der heimischen Familienbrauerei, oder ein guter Schoppen Frankenwein aus der näheren Umgebung.
Versorger / Infrastrukturanbieter
Folgende Grundversorger sind vor Ort. Je nach Lage können die verfügbaren Anbieter eingeschränkt sein. Beachten Sie die Angaben bei den Angeboten.
| Abwasserentsorger |
Stadt Marktheidenfeld - Kläranlage - Lengfurter Straße 40 97828 Marktheidenfeld Deutschland Tel: +49 9391-50770 Fax: +49 9391-507750 wolfgang.stieber@marktheidenfeld.de https://www.stadt-marktheidenfeld.de/rathaus-burgerservice/stadt-einrichtungen/klaranlage |
| Wasserversorger |
Stadt Marktheidenfeld - Wasserwerk - Georg-Mayer-Straße 11 97828 Marktheidenfeld Deutschland Tel: +49 9391-507883 Fax: +49 9391-50884 wasserwerk@marktheidenfeld.de https://www.stadt-marktheidenfeld.de/rathaus-burgerservice/stadt-einrichtungen/wasserwerk |

Anbieterinformationen
Verantwortlich für Inhalte und Angebote dieser Seite: Stadt Marktheidenfeld
Fakten |
|
|---|---|
| Höhe: | 154 ü. NN |
| Gebiet: | 36 km² |
| Bürgermeister: | Thomas Stamm |
| Einwohner: | 11.500 |
| Einwohner mit Umland: | 35.000 |
| Bevölkerungsdichte: | |
| Gründung: | |
| Internet: www.marktheidenfeld.de | |
| Postleitzahl: | 97828 |
| Vorwahl: | 09391 |
| Gemeindeschlüssel: | 9677157 |
| Gewerbesteuerhebesatz: | 340 |

