310 m² Laden in der Altstadt zentral mit großer Schaufensterfläche!

Die Ladenfläche im Erdgeschoss mit ihren großen Schaufenstern an drei Seiten wurde in den 90-er Jahren komplett renoviert und an die Bedürfnisse moderner Gewerbeflächen angepasst.




Ausstattung & Merkmale

Haus / Wohnung

  • Badewanne
  • Dusche
  • Einbauküche
  • Gäste WC
  • Stellplatz

Energie und Heizung

  • Gasheizung

Sonstiges


Objektbeschreibung

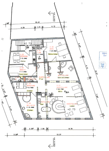
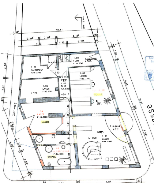
Die Einzelhandelsfläche ist wie folgt aufgeteilt (bitte beachten Sie auch die beigefügten Grundrisse): Der Zugang zum Laden erfolgt auf Straßenniveau über eine moderne doppelflügelige, automatische Schiebetür. Über einen kleinen Absatz geht es hinunter auf das Niveau des großen, hellen, mit strapazierbaren Fliesen ausgelegten Verkaufsraums mit dem großzügigen Kassenbereich (Tresen mit Stauraum darunter und dahinter), der modernen Wendeltreppe ins Obergeschoss und dem Lager im hinteren Bereich, das von der Bachgasse aus bestückbar ist. Im Obergeschoss befinden sich ein weiterer großer, heller, mit Teppich ausgelegter Verkaufsraum sowie eine geräumige Teeküche und zwei separaten Toiletten für Kunden und Mitarbeiter:innen. Zur Gewerbefläche gehört ein Stellplatz im Freien, der beispielsweise als Kundenparkplatz genutzt werden kann.

Ob Shop, Galerie, Praxis oder Büro/Co-Working: Je nach Geschäftskonzept lassen sich die Flächen im Erd- und Obergeschoss getrennt voneinander nutzen.

Die monatlichen Betriebskostenvorauszahlung beträgt ca. 320,00 Euro. Darin sind folgende Kosten inbegriffen: Grundsteuer, Gebäude- und Haftpflichtversicherungen, Niederschlagswassergebühren, Frisch und Schmutzwasser, Schornsteinfeger, Wartungen usw. Lage

Die Froschgasse liegt in der Tübinger Altstadt und verläuft – quasi als Verlängerung der Hirschgasse – in einem Bogen um die Johanneskirche herum, um schließlich in die Lange Gasse zu münden. Die Froschgasse ist zwar keine Fußgängerzone aber eine verkehrstechnisch ruhige Straße, so dass Stadtbewohner:innen und Besucher:innen der Unistadt hier gerne bummeln. Nicht zuletzt auch deshalb, da viele der hier ansässigen Geschäfte inhabergeführte Läden mit individuellen Angeboten sind. Die Froschgasse 15, in deren Erdgeschoss und Obergeschoss die Gewerbefläche zu finden ist, ist ein ursprünglich aus dem 18. Jahrhundert stammendes dreistöckiges Gebäude, das 1950 neu erbaut wurde.


Frühestmöglicher Bezugstermin: 05.03.2026


Provision: 2,38 Nettokaltmieten incl. gesetzl. MwSt


Energie

Energieausweis
keine Angabe
Verbrauch
kWh/(m² a)
Effizienzklasse
0
Primärenergie
Gas

Preis / Kosten

Kaltmiete
auf Anfrage
Miete inkl. Nebenkosten
320,00 €

Lage

Objekt: IM1522

Status frei
Kaltmiete auf Anfrage
Miete inkl. Nebenkosten 320,00 €
Größe 310 m2
Anzahl Zimmer 4,00
Objektart Ladenfläche
Objektzustand gehobene Ausstattung
Nutzung / Objektart gewerbliche Nutzung
Baujahr 1950
Letzte Sanierung 1990
Frühester Bezugstermin 05.03.2026
Adresse
Froschgasse 15
72074 Tübingen (Altstadt)
Anfrage starten

Exposé downloaden

Ansprechpartner

Herr Georg Kermanidis

GEORG KERMANIDIS IMMOBILIEN e.Kfm.
Tel.: 07071 9649070
E-Mail: kontakt@kermanidis.de

Anbieterinformationen

Verantwortlich für Inhalte und Angebote dieser Seite: Universitätsstadt Tübingen

Impressum des Anbieters Datenschutzrichtlinie des Anbieters