Einfamilienhaus mit Einliegerwohnung in Radeberg - Baugebiet 'Einfamilienhaus in Radeberg im Höchstgebotsverfahren'

Grundstücks-Info

Beschreibung

Einfamilienhaus mit Einliegerwohnung in Radeberg - Baugebiet 'Einfamilienhaus in Radeberg im Höchstgebotsverfahren'

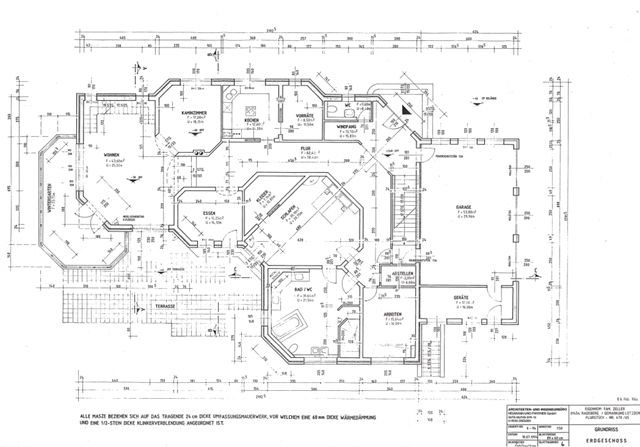
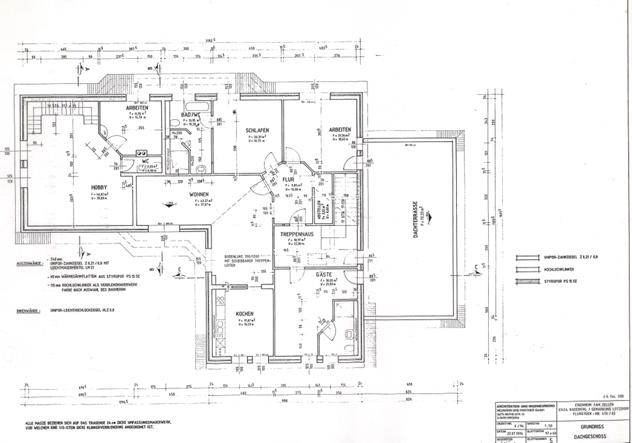
Objektbeschreibung: voll unterkellertes Einfamilienhaus mit Einliegerwohnung im Dachgeschoss und separatem Zugang sowie drei Garagen und zwei Stellplätze auf dem Grundstück; ortsübliche Erschließung mit Wasser, Abwasser im Trennsystem, Strom, Telefon, TV-Satellitenanlage, DSL-Anschluss; auf dem Grundstück befindet sich eine 10.000 Liter-Regenwasser-Sammelanlage

Bebaubarkeit und Nutzung:
 Grundstück gehört zum räumlichen Geltungsbereich des Bebauungsplanes Nr. 1 „Badstraße West“; zulässige bauliche Nutzung im Mischgebiet nach § 6 BauNVO lässt weitere Bebauung auf dem Grundstück mit max. GRZ = 0,8, max. GFZ = 1,0, in offener Bauweise und mit max. 1 Vollgeschoss zu; Wohnen und sonstiges nichtstörendes Gewerbe

Flächen:
Grundstück: ca. 4.000 m² Wohnfläche: ca. 475 m² Nutzfläche: ca. 737 m² Garagen: ca. 73 m²

Baujahr: 1995 

Mindestgebot: 800.000 €; gewertet werden nur Gebote mit fixer Kaufpreissumme

Vergabekriterien: Die Ausschreibung erfolgt gegen Höchstgebot im öffentlichen strukturierten Bieterverfahren. Die Käuferseite ist aufgefordert, Kaufangebote in individueller Höhe zu unterbreiten. Dem Kaufpreisangebot ist eine Finanzierungsbestätigung der Bank beizufügen. Der Kaufvertragsabschluss erfolgt innerhalb von 6 Wochen nach Zuschlagserteilung.

Ortsbesichtigungen: Ortsbesichtigungen finden während der Ausschreibungsdauer werktags in der Zeit von 10 bis 14 Uhr nach Vereinbarung statt

Bieterfrist:
 10. April 2026

Hinweise:
Bei dem öffentlichen Anbieten von Grundstücken durch die Landeshauptstadt Dresden handelt es sich um kein Verfahren nach VOB/VOL und somit kein förmliches Ausschreibungsverfahren.  Das Grundstücksangebot stellt lediglich eine öffentliche und unverbindliche Aufforderung zur Abgabe von Angeboten dar. Alle mit der Angebotsabgabe verbundenen Kosten trägt der Bieter.

Die Entscheidung der Landeshauptstadt Dresden/Amt für Hochbau und Immobilienverwaltung ob, wann, an wen und zu welchen Konditionen vergeben wird, ist freibleibend. Das Exposé gilt nicht als Angebot für einen Maklerauftrag.

Ansprechpartner:
sind Herr Rißmann (Telefon (0351) 4 88 25 67; E-Mail: rrissmann@dresden.de) sowie Frau Rötschke (Telefon (0351) 4 88 25 59; E-Mail: rroetschke@dresden.de).

Lage

in der Stadt Radeberg, ca. 19 km nordöstlich von Dresden in einem Neubaugebiet am nordwestlichen Stadtrand Radebergs in ruhiger Lage gelegen


Fakten

Nutzung Mischgebiet
Angebotsart Verkauf (Höchstpreisverfahren)
Fläche 4000 qm
Quadratmeterpreis 200,00 €/m2
Mindestgebot 800.000,00 €
Kaufpreis
Flurstücknummer 470/65
Straße / Hausnummer An der Ziegelei 7a
Bebauungsplan rechtskräftig seit n/a
Erschließungsdatum nicht bekannt
Bauzwang
Haustypen
Dachformen
Dachneigung
GFZ 1
GRZ 0,8
Vollgeschosse I
Einheimischenklausel
Anbieter Landeshauptstadt Dresden

Infrastruktur

Energieversorgung
Gas
Nah- oder Fernwärme
Wasserversorgung

Kommunikation

DSL
Glasfaseranschluss
Kabelanschluss
VDSL

Umgebung

Alten- und Pflegeheime
Ärzte
Einkaufsmöglichkeiten
Kindergarten
Kinderkrippe
Kitas
Krankenhäuser / Kliniken
Mobiler Pflegedienst
Öffentlicher Personennahverkehr
Schulen
Schwimmbäder / Badeseen
Sozialstationen
Spielplätze
Sporteinrichtungen


Alle Grundstücke im Baugebiet 'Einfamilienhaus in Radeberg im Höchstgebotsverfahren'

Einfamilienhaus in Radeberg im Höchstgebotsverfahren

Baugebiet und Umgebung

Die Ausschreibung erfolgt gegen Höchstgebot im öffentlichen strukturierten Bieterverfahren. Die Käuferseite ist aufgefordert, Kaufangebote in individueller Höhe zu unterbreiten. Dem Kaufpreisangebot ist eine Finanzierungsbestätigung der Bank beizufügen. Der Kaufvertragsabschluss erfolgt innerhalb von 6 Wochen nach Zuschlagserteilung.

Objektbeschreibung: voll unterkellertes Einfamilienhaus mit Einliegerwohnung im Dachgeschoss und separatem Zugang sowie drei Garagen und zwei Stellplätze auf dem Grundstück; ortsübliche Erschließung mit Wasser, Abwasser im Trennsystem, Strom, Telefon, TV-Satellitenanlage, DSL-Anschluss; auf dem Grundstück befindet sich eine 10.000 Liter-Regenwasser-Sammelanlage

Bebaubarkeit und Nutzung: Grundstück gehört zum räumlichen Geltungsbereich des Bebauungsplanes Nr. 1 „Badstraße West“; zulässige bauliche Nutzung im Mischgebiet nach § 6 BauNVO lässt weitere Bebauung auf dem Grundstück mit max. GRZ = 0,8, max. GFZ = 1,0, in offener Bauweise und mit max. 1 Vollgeschoss zu; Wohnen und sonstiges nichtstörendes Gewerbe

Flächen: Grundstück: ca. 4.000 m² Wohnfläche: ca. 475 m² Nutzfläche: ca. 737 m² Garagen: ca. 73 m²

Baujahr: 1995


Zum Baugebiet
Objekt-Nr.: GR13992
Grundstücksgröße: 4000 qm
Mindestgebot : 800.000,00 €
Kaufpreis inkl. Erschließungskosten, inkl. Entwässerungskosten, inkl. Hausanschlusskosten, inkl. Vermessungskosten, inkl. Kostenerstattungsbetrag

Gebot abgeben
Bewerbungsfrist: 10.04.2026


Für dieses Baugebiet können Sie sich während der Bewerbungsphase auf bis zu Grundstücke bewerben.



Exposé downloaden
auf Merkliste setzen


Ansprechpartner


Service

Telefon: 0351 4 88 11 880351 4 88 11 88
E-Mail: immobilien@dresden.de



Anbieterinformationen

Verantwortlich für Inhalte und Angebote dieser Seite: Landeshauptstadt Dresden

Impressum des Anbieters Datenschutzrichtlinie des Anbieters