
| Grundstück: | Bauplatz 09 |
| Status: | verkauft |
| Größe: | 511 m2 |
| Nutzungsart: | Allgemeines Wohngebiet |

| Grundstück: | Bauplatz 16 |
| Status: | verkauft |
| Größe: | 818 m2 |
| Nutzungsart: | Allgemeines Wohngebiet |

| Grundstück: | Bauplatz 07 |
| Status: | verkauft |
| Größe: | 626 m2 |
| Nutzungsart: | Allgemeines Wohngebiet |

| Grundstück: | Bauplatz 12 |
| Status: | verkauft |
| Größe: | 397 m2 |
| Nutzungsart: | Allgemeines Wohngebiet |

| Grundstück: | Bauplatz 17 |
| Status: | verkauft |
| Größe: | 752 m2 |
| Nutzungsart: | Allgemeines Wohngebiet |

| Grundstück: | Bauplatz 18 |
| Status: | verkauft |
| Größe: | 663 m2 |
| Nutzungsart: | Allgemeines Wohngebiet |

| Grundstück: | Bauplatz 10 |
| Status: | verkauft |
| Größe: | 528 m2 |
| Nutzungsart: | Allgemeines Wohngebiet |

| Grundstück: | Bauplatz 11 |
| Status: | verkauft |
| Größe: | 588 m2 |
| Nutzungsart: | Allgemeines Wohngebiet |

| Grundstück: | Bauplatz 13 |
| Status: | verkauft |
| Größe: | 757 m2 |
| Nutzungsart: | Allgemeines Wohngebiet |

| Grundstück: | Bauplatz 08 |
| Status: | verkauft |
| Größe: | 547 m2 |
| Nutzungsart: | Allgemeines Wohngebiet |

| Grundstück: | Bauplatz 14/1 |
| Status: | verkauft |
| Größe: | 300 m2 |
| Nutzungsart: | Allgemeines Wohngebiet |

| Grundstück: | Bauplatz 15 |
| Status: | verkauft |
| Größe: | 731 m2 |
| Nutzungsart: | Allgemeines Wohngebiet |

| Grundstück: | Bauplatz 14 |
| Status: | verkauft |
| Größe: | 432 m2 |
| Nutzungsart: | Allgemeines Wohngebiet |

| Grundstück: | Bauplatz 06 |
| Status: | verkauft |
| Größe: | 755 m2 |
| Nutzungsart: | Allgemeines Wohngebiet |

| Grundstück: | Bauplatz 03 |
| Status: | verkauft |
| Größe: | 632 m2 |
| Nutzungsart: | Allgemeines Wohngebiet |

| Grundstück: | Bauplatz 01 |
| Status: | verkauft |
| Größe: | 787 m2 |
| Nutzungsart: | Allgemeines Wohngebiet |

| Grundstück: | Bauplatz 04 |
| Status: | verkauft |
| Größe: | 707 m2 |
| Nutzungsart: | Allgemeines Wohngebiet |

| Grundstück: | Bauplatz 02 |
| Status: | verkauft |
| Größe: | 819 m2 |
| Nutzungsart: | Allgemeines Wohngebiet |

| Grundstück: | Bauplatz 05 |
| Status: | verkauft |
| Größe: | 690 m2 |
| Nutzungsart: | Allgemeines Wohngebiet |

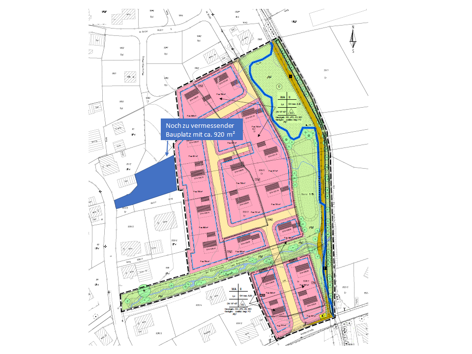
| Grundstück: | Bauplatz 19 |
| Status: | verkauft |
| Größe: | 920 m2 |
| Nutzungsart: | Dorfgebiet |
Baugebiet Brühl II
Das Baugebiet „Brühl II“ konnte im Jahr 2019 innerhalb kürzester Zeit komplett veräußert werden. Im Februar 2021 hat die Gemeinde Wain sein Rückkaufrecht für zwei bereits veräußerte Grundstücke geltend gemacht. Da die Rückabwicklung der beiden Bauplätze abgeschlossen ist, können die Bauplätze 2 und 9 zum Verkauf angeboten werden. Des Weiteren konnte durch die Arrondierung von innerörtlichen Flächen ein weiterer Bauplatz, welcher an das bestehende Baugebiet „Brühl II“ angrenzt, geschaffen werden (Bauplatz 19).
Entsprechend des Gemeinderatsbeschlusses vom 22. April 2021 können sich die Bauplatzinteressenten in der Zeit vom 07. Juni bis zum 02. Juli 2021 über die Internetplattform www.baupilot.com/wain im Rahmen der Bauplatzvergaberichtlinien auf die Bauplätze bewerben. Sollte keine digitale Bewerbungsmöglichkeit vorhanden sein, ist auch eine Bewerbung in schriftlicher Form möglich und kann bei der Gemeindeverwaltung eingereicht oder an die Gemeinde per Einschreiben geschickt werden. Nähere Informationen erhalten Sie bei Herrn Mantz unter 07353/980336 und/oder stephan.mantz@wain.de.
Baugrund
siehe Baugrundgutachten
Nicht gefunden was Sie suchen?
Zurück zum Stadtportal von WainFolgende Grundstücke werden in diesem Baugebiet vermarktet.
Verantwortlich für Inhalte und Angebote dieser Seite: Gemeinde Wain
Dokumente |
|---|
| Gutachten |
Fakten |
|
|---|---|
| Stadt / Gemeinde: | Wain |
| Nutzungsart: | Allgemeines Wohngebiet |
| Angebotstyp: | Verkauf |
| Preis: | ab 115,00 €/m2 |
| Hausanschlusskosten: | 5291,07 € |
| Grundstücksgrößen: ab 511 m2 bis 819 m2 | |
| Grundstücke in Baugebiet: | 20 |
| Freie Grundstücke: | 0 |
| Bebauungsplan rechtskräftig seit: | 21.09.2018 |
| Baugebiets-Id: | BG1188 |
| Bauzwang: | |
| Erschließungsdatum: | seit dem 20.12.2019 |
| Einheimischenklausel: | |
| Maximale Gebäudehöhe: | 8,5 m |
Infrastruktur |
|
|---|---|
| Wasserversorgung | |
| Energieversorgung | |
| Gas | |
| Nah- oder Fernwärme | |
Kommunikation |
|
| Glasfaseranschluss | |
| VDSL | |
| Kabelanschluss | |
| DSL | |
Umgebung |
|
| Kitas | |
| Kindergärten | |
| Öffentlicher Personennahverkehr | |
| Spielplätze | |
| Kinderkrippe | |
| Alten- und Pflegeheime | |
| Krankenhäuser / Kliniken | |
| Schulen | |
| Mobiler Pflegedienst | |
| Sporteinrichtungen | |
| Ärzte | |
| Einkaufsmöglichkeiten | |
| Schwimmbäder / Badeseen | |
| Sozialstationen |