120 m² Werkstattfläche in Derendingem

Zur Vermietung steht eine vielseitig nutzbare Gewerbefläche mit 120 m² in ruhiger Hinterhoflage – gut erreichbar, zentral und mit kreativen Nutzungsmöglichkeiten. Ideal geeignet als Fahrradwerkstatt, Werkstatt, Atelier, Lagerfläche




Ausstattung & Merkmale

Haus / Wohnung

  • Gäste WC

Energie und Heizung

  • Zentralheizung

Sonstiges


Objektbeschreibung

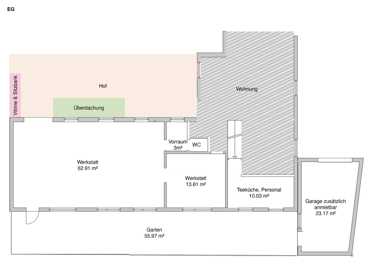
Raumaufteilung:• Erdgeschoss (ca. 94m²):- Werkstatt: ca. 76,5m²- Büro-/Personalraum: ca. 10m²- Toilette mit Vorraum (Arbeitswaschbecken, Warmwasser vorhanden)• Untergeschoss (ca. 26m²):- Lagerraum und Gewölbekeller 

Ausstattung & Besonderheiten:

• Große Doppelflügeltür

• Holzdielen- und Betonboden

• Deckenheizung: optimale Nutzung der Wandflächen

• Moderne Wärmepumpe (umweltfreundliche Heiztechnik)

• Überdachte Außenfläche mit Vitrine – ideal für Präsentationen

• Rückwärtiger Garten (Alleinnutzung, ca. 56m²) – z.B. als Pausenbereich oder grüne Erweiterung• Garage (ca. 23m²) mit direktem Zugang zum Garten optional anmietbar

Lage:• Ruhige Hinterhoflage• Sehr gute Anbindung an den ÖPNV: Bushaltestelle und Bahnhof Tübingen-Derendingen in der Nähe• Direkte Anbindung an die B27 – sehr gut erreichbar mit dem Auto• Nur ca. 15 Gehminuten bis zur Innenstadt• Nahversorgung fußläufig: z.B. Bäcker, Obststand

Kosten & Konditionen:• Kaltmiete: 1.390€ zzgl. MwSt.• Nebenkosten: ca. 200€ (inkl. Heizung & Wasser, exkl. Strom)• Kaution: 2 Monatskaltmieten• Garage (optional): auf Anfrage• Verfügbar ab: Januar 2026


Frühestmöglicher Bezugstermin: 01.01.2026



Energie

Energieausweis
keine Angabe
Verbrauch
kWh/(m² a)
Effizienzklasse
0
Primärenergie

Preis / Kosten

Kaltmiete
1.390,00 €
Miete inkl. Nebenkosten
1.390,00 €

Lage

Objekt: IM1483

Status frei
Kaltmiete 1.390,00 €
Miete inkl. Nebenkosten 1.390,00 €
Größe 120 m2
Anzahl Zimmer
Objektart Gewerbeobjekt
Objektzustand normale Ausstattung
Nutzung / Objektart gewerbliche Nutzung
Baujahr 1970
Letzte Sanierung
Frühester Bezugstermin 01.01.2026
Adresse

72070 Tübingen (Derendingen)


Exposé downloaden

Ansprechpartner

Dies ist ein privates Angebot!

Frau Melanie Keding


E-Mail: melanie.keding@yahoo.de

Rechtlicher Hinweis für den Ausschluss der Maklerfunktion

Universitätsstadt Tübingen stellt den Service der Plattform auch für Anbieter und Interessenten von gewerblichen und/oder privaten Angeboten zur Verfügung. Sie übernimmt keine Maklerfunktion. Für die Inhalte der Angebote, das heißt die Korrektheit und Vollständigkeit der Angaben übernehmen wir keine Haftung.

Anbieterinformationen

Verantwortlich für Inhalte und Angebote dieser Seite: Universitätsstadt Tübingen

Impressum des Anbieters Datenschutzrichtlinie des Anbieters