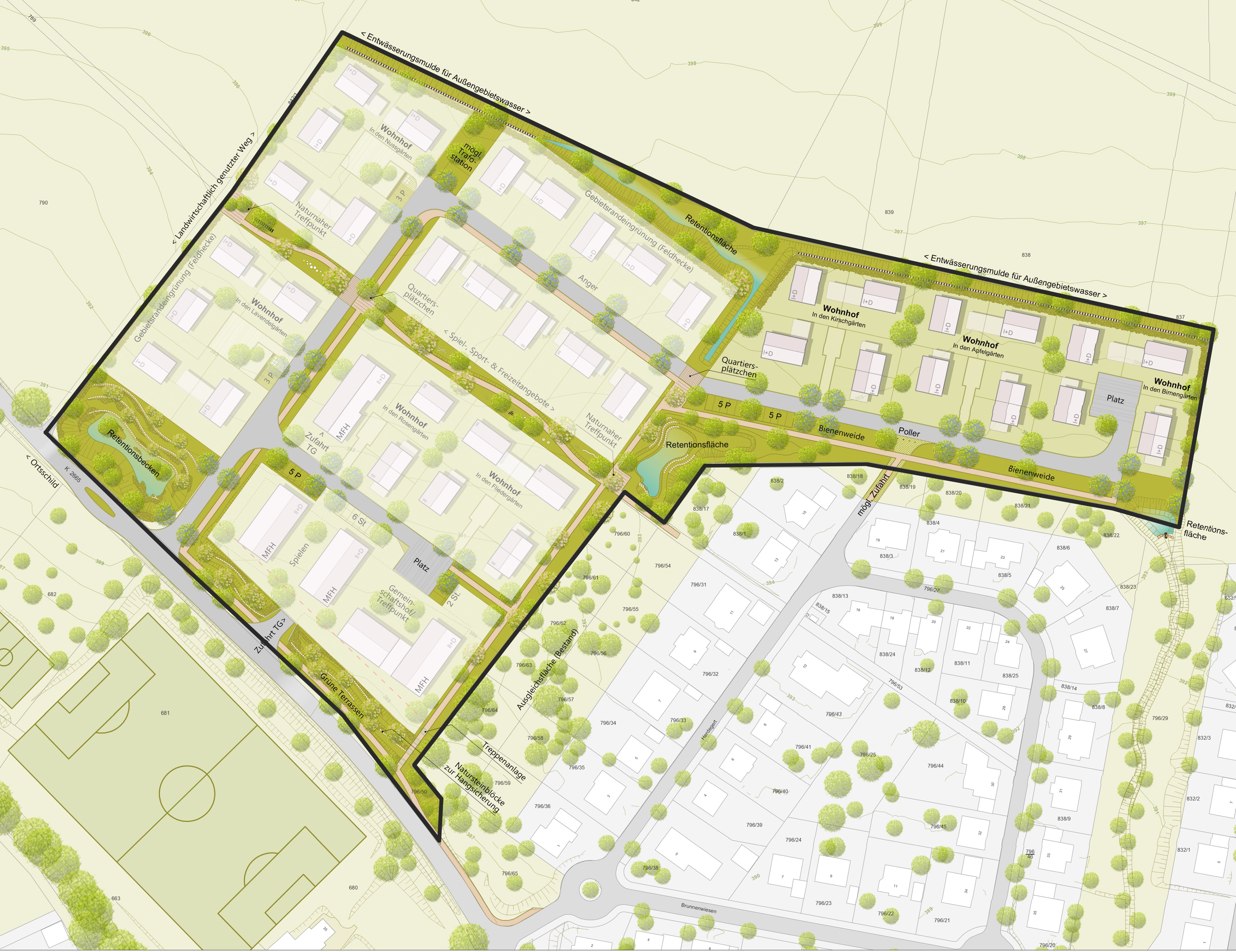
Baugebiet 'Tüngental' 74523 Schwäbisch Hall

Tüngental

Hier kommen ländlicher Charme und dörflicher Zusammenhalt mit einer guten Infrastruktur zusammen – in Angrenzung ans schöne Bühlertal und in nächster Nähe zur Stadt.

Wohngebiet Tüngental im Überblick:

  • Baugrundstücke für Einzel-, und Doppelhäuser und/oder Hausgruppen
  • Naturverbundenes Wohngebiet im Grünen
  • Sehr gute Infrastrukturanbindung
  • Attraktive Grundstückspreise

Die Kleinsten sind in Tüngental im Kindergarten gut aufgehoben. Für alle Altersklassen gibt es unterschiedliche Sportangebote im örtlichen Verein. Seinen dörflichen Charme bewahrt sich Tüngental im Ortskern. Nicht weit ist es bis zu den vielfältigen Einkaufsmöglichkeiten im Fachmarktzentrum Gründle in Hessental.

Weitere Angaben

Lage

Powern und entspannen:

Die Ortschaft Tüngental liegt ca. 5 km östlich vom Stadtzentrum Schwäbisch Hall entfernt und ist durch die Kreisstraße 2665 schnell und bequem mit dem Bus und Pkw zu erreichen. Die landschaftlich schöne Umgebung und das Naherholungsgebiet Bühlertal eröffnen viel Raum, um sich auszupowern oder einfach nur zu entspannen.

Bildergalerie

Nicht gefunden was Sie suchen?

Zurück zum Stadtportal von Schwäbisch Hall


Interessentenliste Wohnbau

Tragen Sie sich jetzt in die Interessentenliste "Interessentenliste WOHNBAU für Schwäbisch Hall / HGE" ein, um über neue Wohnbau-Grundstücke informiert zu werden.


Ansprechpartner

Tatjana Breitenbücher
Marketing und Vertrieb
HGE

Telefon: 0791 751 7100791 751 710
E-Mail: info@hge-sha.de


Ansprechpartner für baurechtl. Fragen

Stefan Franz
Baurechtsamt
Stadt Schwäbisch Hall

Telefon: 0791 751 4230791 751 423
E-Mail: stefan.franz@schwaebischhall.de

Anbieterinformationen

Verantwortlich für Inhalte und Angebote dieser Seite: Schwäbisch Hall / HGE

Impressum des Anbieters Datenschutzrichtlinie des Anbieters


Dokumente

Pläne
Richtlinien und Vorschriften

Fakten

Stadt / Gemeinde: Schwäbisch Hall
Nutzungsart: Allgemeines Wohngebiet
Angebotstyp: Verkauf
Grundstücksgrößen:
Grundstücke in Baugebiet: 0
Freie Grundstücke: 0
Bebauungsplan rechtskräftig seit: 03.09.2024
Baugebiets-Id: BG1471
Bauzwang:
Erschließungsdatum: seit dem 01.09.2025
Einheimischenklausel:

Infrastruktur

Wasserversorgung
Gas
Nah- oder Fernwärme
Energieversorgung

Kommunikation

Glasfaseranschluss
DSL
VDSL
Kabelanschluss

Umgebung

Ärzte
Spielplätze
Kinderkrippe
Kindergarten
Sozialstationen
Einkaufsmöglichkeiten
Öffentlicher Personennahverkehr
Kitas
Krankenhäuser / Kliniken
Alten- und Pflegeheime
Schwimmbäder / Badeseen
Mobiler Pflegedienst
Schulen
Sporteinrichtungen