
| Grundstück: | Grundstück im Gewerbepark Nord |
| Status: | verfügbar |
| Größe: | 1 m2 |
| Preis: | 120,00 € |
| Nutzungsart: | Gewerbegebiet |
Der Gewerbepark Nord wird Mitte des Jahres 2024 erschlossen. Die Vermessung der Grundstücke ist nocht nicht durchgeführt.
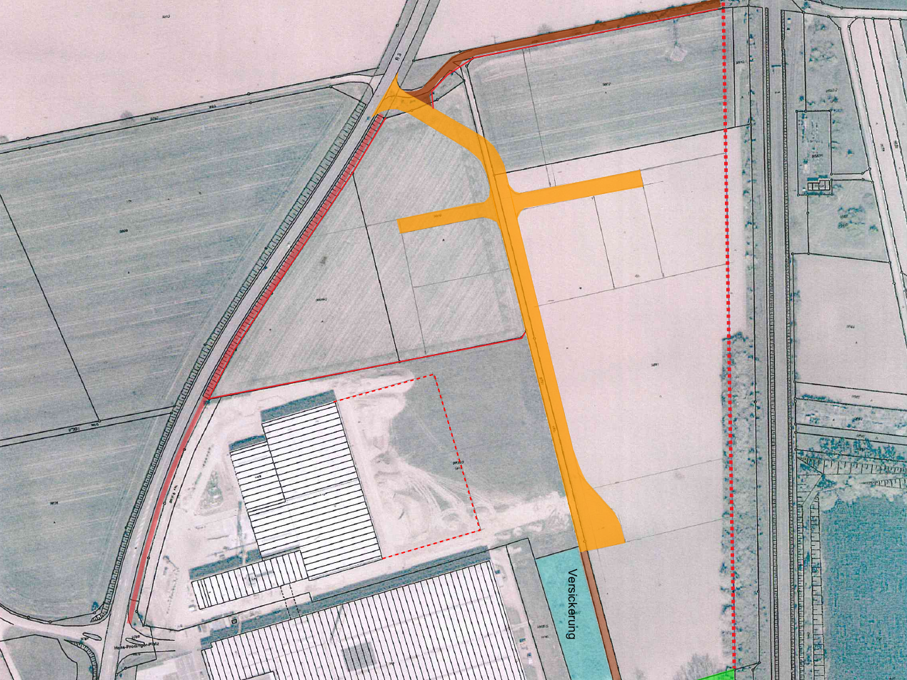
Der Gewerbepark Nord liegt im westlichen Siedlungsbereich der Stadt Herbolzheim mit Anschluss an die B3 und die Autobahn A5 und hat eine Größe von 81.635 m². Es handelt sich um ein attraktives Industrie- und Gewerbegebiet in guter Lage, zum einen mit geringer Entfernung zur Rheintalbahn als auch zur Innenstadt. Der Gewerbepark Nord liegt im Anschluss an das bereits bestehende Gewerbe in nordwestlicher Richtung. Die ersten möglichen Flächenzuschnitte sind bereits erstellt, aber noch variabel. Der Aufstellungsbeschluss für eine geordnete Entwicklung ist bereits erfolgt. Der Gemeinderat wünscht insbesondere die Ansiedlung von kleinen und mittelständischen Unternehmen.
Nicht gefunden was Sie suchen?
Zurück zum Stadtportal von HerbolzheimFolgende Grundstücke werden in diesem Baugebiet vermarktet.
Grundstück im Gewerbepark NordGewerbepark Nord in Herbolzheim, Herbolzheim Größe: 1 qm |
1 qm |
Kaufpreis 120,00 € Preis je Quadratmeter 120,00 €/m2 Verkauf |
Verantwortlich für Inhalte und Angebote dieser Seite: Stadt Herbolzheim
Dokumente |
|---|
| Pläne |
Fakten |
|
|---|---|
| Stadt / Gemeinde: | Herbolzheim |
| Nutzungsart: | Gewerbegebiet |
| Angebotstyp: | Verkauf |
| Preis: | ab 120,00 €/m2 |
| Grundstücksgrößen: | |
| Grundstücke in Baugebiet: | 1 |
| Freie Grundstücke: | 1 |
| Bebauungsplan rechtskräftig seit: | n/a |
| Baugebiets-Id: | BG1442 |
| Bauzwang: | |
| Erschließungsdatum: | nicht bekannt |
| Einheimischenklausel: | |
Infrastruktur |
|
|---|---|
| Nah- oder Fernwärme | |
| Energieversorgung | |
| Gas | |
| Wasserversorgung | |
Kommunikation |
|
| VDSL | |
| Kabelanschluss | |
| Glasfaseranschluss | |
| DSL | |
Umgebung |
|
| Krankenhäuser / Kliniken | |
| Kindergarten | |
| Kinderkrippe | |
| Sozialstationen | |
| Mobiler Pflegedienst | |
| Öffentlicher Personennahverkehr | |
| Schwimmbäder / Badeseen | |
| Schulen | |
| Spielplätze | |
| Kitas | |
| Einkaufsmöglichkeiten | |
| Alten- und Pflegeheime | |
| Sporteinrichtungen | |
| Ärzte |