
| Grundstück: | A 1 - DHH |
| Status: | reserviert |
| Größe: | 588 m2 |
| Preis: | 219.039,79 € |
| Nutzungsart: | Allgemeines Wohngebiet |

| Grundstück: | A 6 - DHH |
| Status: | reserviert |
| Größe: | 403 m2 |
| Preis: | 150.766,23 € |
| Nutzungsart: | Allgemeines Wohngebiet |

| Grundstück: | A 9 - DHH |
| Status: | reserviert |
| Größe: | 513 m2 |
| Preis: | 191.361,32 € |
| Nutzungsart: | Allgemeines Wohngebiet |

| Grundstück: | A 10 - DHH |
| Status: | reserviert |
| Größe: | 294 m2 |
| Preis: | 110.540,19 € |
| Nutzungsart: | Allgemeines Wohngebiet |
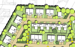
Das Baugebiet „Große Eversheide“ bietet insgesamt Platz für rund 215 Wohneinheiten. Die Hälfte davon finden sich im nördlichen Bereich in Ketten-, Reihen- und Doppelhäusern sowie einigen freistehenden Einfamilienhäusern wieder. Im südlichen Bereich hat die kommunale Wohnungsbaugesellschaft WiO vier Mehrfamilienhäuser errichtet. Ein weiteres rund 4.500 m² großes Grundstück ist für die Errichtung einer Kindertageststätte vorgesehen.
Die Bewerbungsphase läuft vom 29.11.2024 bis zum 31.01.2025. Unterlagen können bis zum 28.02.2025 hochgeladen werden.
Zwischen Wersener Straße und Atterstraße gelegen und nur rund einen Kilometer vom Naherholungsgebiet Rubbenbruchsee entfernt, entsteht im Stadtteil Eversburg ein ungefähr fünf Hektar großes Baugebiet, dessen Flächen zu einem großen Teil der Stadt gehören. In unmittelbarer Nähe befinden sich das Schulzentrum Eversburg sowie die „Integrierte Gesamtschule (IGS)“. Die Kindertagesstätte der evangelischen Kirche ist ebenfalls fußläufig zu erreichen. Mitten im Wohngebiet lädt ein circa 1.300 m² großer Spielplatz Kinder und Eltern zum Spielen ein.
Der nördliche Teilbereich des Gebiets zeichnet sich durch eine zulässige Bebauung von Doppelhaushälften, Reihen- und Kettenhäusern aus und eignet sich daher ideal für Alleinstehende, Paare oder Familien, die auf der Suche nach baureifen Grundstücken im Gebiet der Stadt Osnabrück sind.
Die Wärmeversorgung der Gebäude ist dezentral, z. B. durch Luft-Wasser-Wärmepumpen vorgesehen. Erdgasleitungen sind im Gebiet nicht verlegt.
Anfallendes Niederschlagwasser ist umweltschonend auf den Grundstücken zur Versickerung zu bringen.
Die Erschließung des Gebietes erfolgte in zwei Abschnitten. Begonnen wurde zunächst mit dem südlichen Teil für die Mehrfamilienhäuser. Im Norden ist ein Umlegungsverfahren zur Neuordnung der Grundstücke durchgeführt und im Januar 2023 rechtsverbindlich abgeschlossen worden. In der vegetationsarmen Zeit des Winters 2022/2023 wurde das Gelände von aufstehendem Bewuchs freigemacht. Ende November 2023 wurde die Baustelle eingerichtet und es wurden vorbereitende Maßnahmen durchgeführt. Im Anschluss daran wurden durch das beauftragte Tiefbauunternehmen die Erschließungsarbeiten durchgeführt.
Nicht gefunden was Sie suchen?
Zurück zum Stadtportal von OsnabrückFolgende Grundstücke werden in diesem Baugebiet vermarktet.
A 1 - DHHGroße Eversheide | Grundstücke zum vollen Wert in Eversburg, Osnabrück Größe: 588 qm |
588 qm |
Kaufpreis 219.039,79 € Preis je Quadratmeter 294,50 €/m2 Verkauf |
|
A 10 - DHHGroße Eversheide | Grundstücke zum vollen Wert in Eversburg, Osnabrück Größe: 294 qm |
294 qm |
Kaufpreis 110.540,19 € Preis je Quadratmeter 294,50 €/m2 Verkauf |
|
A 6 - DHHGroße Eversheide | Grundstücke zum vollen Wert in Eversburg, Osnabrück Größe: 403 qm |
403 qm |
Kaufpreis 150.766,23 € Preis je Quadratmeter 294,50 €/m2 Verkauf |
|
A 9 - DHHGroße Eversheide | Grundstücke zum vollen Wert in Eversburg, Osnabrück Größe: 513 qm |
513 qm |
Kaufpreis 191.361,32 € Preis je Quadratmeter 294,50 €/m2 Verkauf |
Verantwortlich für Inhalte und Angebote dieser Seite: Stadt Osnabrück
Dokumente |
|---|
| Pläne |
| Gutachten |
| Richtlinien und Vorschriften |
| Formulare und Vorlagen |
Fakten |
|
|---|---|
| Stadt / Gemeinde: | Osnabrück |
| Nutzungsart: | Allgemeines Wohngebiet |
| Angebotstyp: | Verkauf |
| Preis: | ab 294,50 €/m2 |
| Grundstücksgrößen: ab 294 m2 bis 588 m2 | |
| Grundstücke in Baugebiet: | 4 |
| Freie Grundstücke: | 0 |
| Bebauungsplan rechtskräftig seit: | 07.06.2019 |
| Baugebiets-Id: | BG2264 |
| Bauzwang: | |
| Erschließungsdatum: | seit dem 14.10.2024 |
| Einheimischenklausel: | |
Infrastruktur |
|
|---|---|
| Wasserversorgung | |
| Gas | |
| Nah- oder Fernwärme | |
| Energieversorgung | |
Kommunikation |
|
| Glasfaseranschluss | |
| DSL | |
| Kabelanschluss | |
| VDSL | |
Umgebung |
|
| Sozialstationen | |
| Krankenhäuser / Kliniken | |
| Kitas | |
| Alten- und Pflegeheime | |
| Sporteinrichtungen | |
| Einkaufsmöglichkeiten | |
| Schwimmbäder / Badeseen | |
| Schulen | |
| Spielplätze | |
| Kinderkrippe | |
| Mobiler Pflegedienst | |
| Ärzte | |
| Öffentlicher Personennahverkehr | |
| Kindergarten |